2021

Päivälehti museum

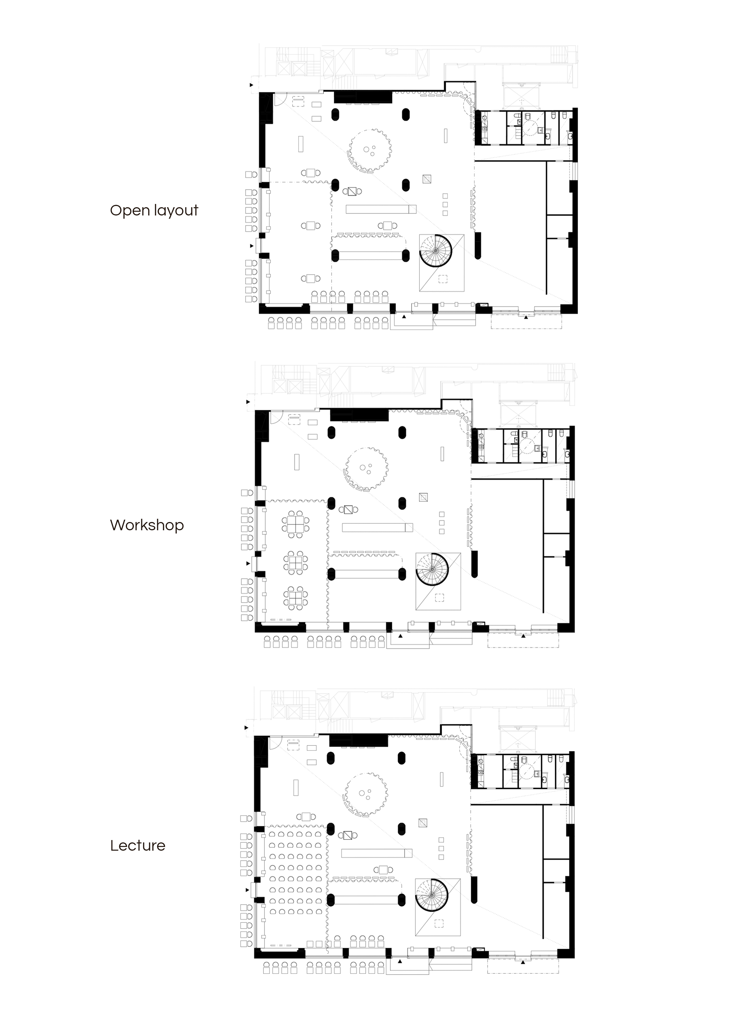
CONCEPT & SPATIAL DESIGN
Designed together with Susanna Partanen.